Stacked Flats @ 1120 South Washington

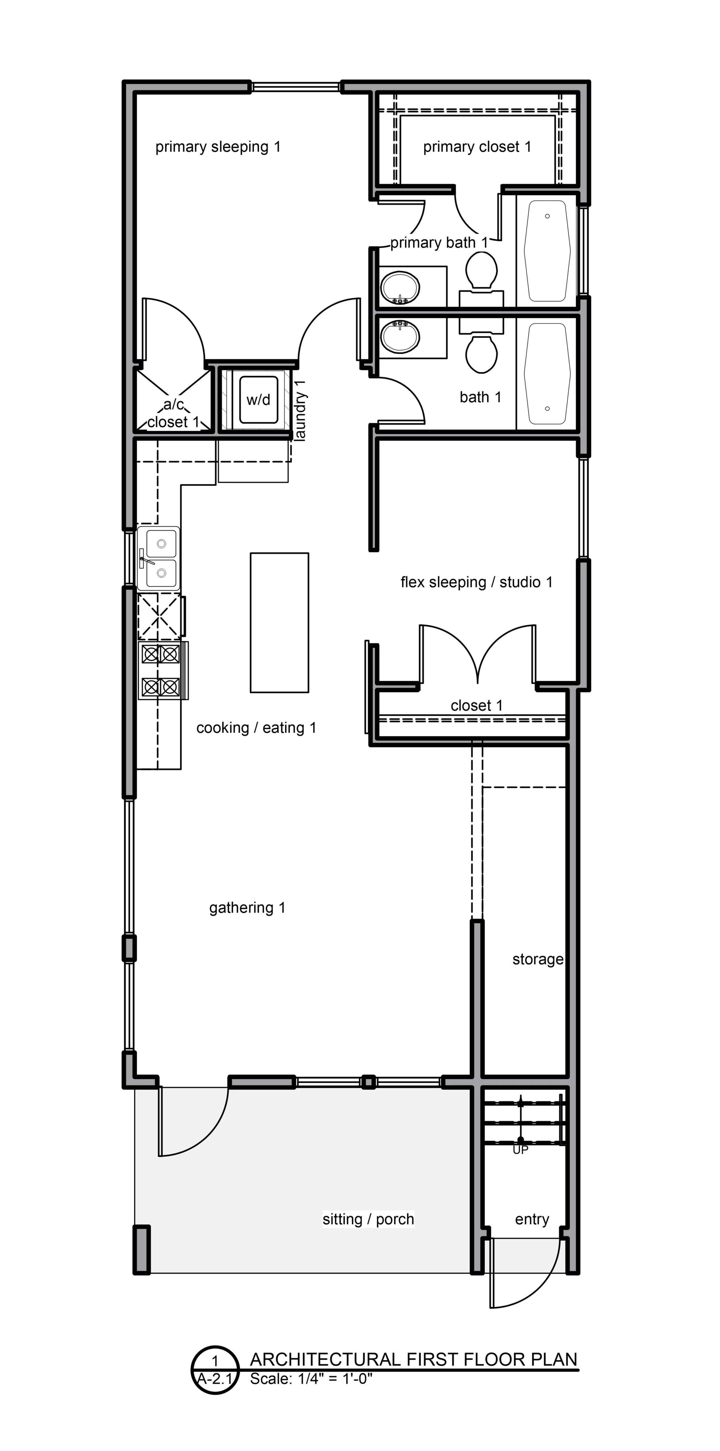
Join one of the first pocket neighborhood developments in Lafayette and embrace a new approach to creating affordable housing. Each residence is a "stacked flat," featuring (2) two-bedroom, two-bathroom units that share access to a common green space.

As an "Owner-Occupant Renter," you can live in one unit while renting out the other, allowing the rental income to help offset your monthly mortgage payments.

Mortgage Calculator

Rendering: Rachel Helminger

Purchase Inquiry (lots 3, 4 and 5 available)

Submit an inquiry for the lot you’re interested in and we’ll reach out to set up a preliminary meeting.